EF0876
2 Häuser, 3 Garagen und Nebengebäude
Flexible Nutzung für die große Familie!
Lage:
Diese außergewöhnliche Immobilie, bestehend aus einem Reihenmittel- und einem -endhaus, befindet sich am Ortseingang von Groß Döhren, einer gemütlichen Ortschaft in der Gemeinde Liebenburg. Die Kreisstadt Goslar, Salzgitter und weitere Städte sind mit dem Fahrzeug in ca. 15 Minuten schnell erreichbar. Hinter dem Grundstück gelangt man direkt in die umliegenden Wald- und Wiesengebiete.
Baujahr:
Die Gebäude wurden Ende des 19. Jahrhunderts in Fachwerkbauweise errichtet und überwiegend von der Eigentümerfamilie selbst bewohnt, ausgebaut und laufend gut instandgehalten. Das kleinere Reihenmittelhaus (Nr. 10) wurde ca. im Jahr 2001 für den Eigenbedarf grundlegend modernisiert: Fenster, Elektrik, Dach (Harzer Doppeldach), etc.. Auch im größeren Endhaus (Nr. 9) wurde bereits die Elektrik überarbeitet, die Fenster überwiegend erneuert, die Fassaden saniert und der Großteil der Räume renoviert. Zuletzt wurde im Jahr 2022 eine moderne Heizungsanlage (Gas) installiert.
Auf dem Grundstück des Hauses Nr. 9 sind Garagen in Massivbauweise vorhanden.
Grundstück:
Das insgesamt 565 m² große Grundstück ist mit 405 m² dem Endhaus Nr. 10 und mit 160 m² dem Haus Nr. 9 zugeordnet. Hinter den Gebäuden befindet sich in südwestlicher Ausrichtung jeweils ein kleiner Gartenbereich und vor den Häusern ein Vorgarten, der auf der einen Seite von dem Nebengebäude mit überdachter Zufahrt (Carport) und Freisitz und auf der anderen Seite von der Garagenanlage eingegrenzt ist. Das vordere Grundstück ist sowohl durch das Carport als auch durch die Doppelgarage bequem mit kleinen und größeren Fahrzeugen befahrbar.
Wohn- / Nutzfläche (ca.-Angaben – ohne Gewähr):
Die Wohnfläche beträgt insgesamt 193 m², die sich auf die beiden Wohnhäuser mit jeweils 3 Etagen wie folgt aufteilt:
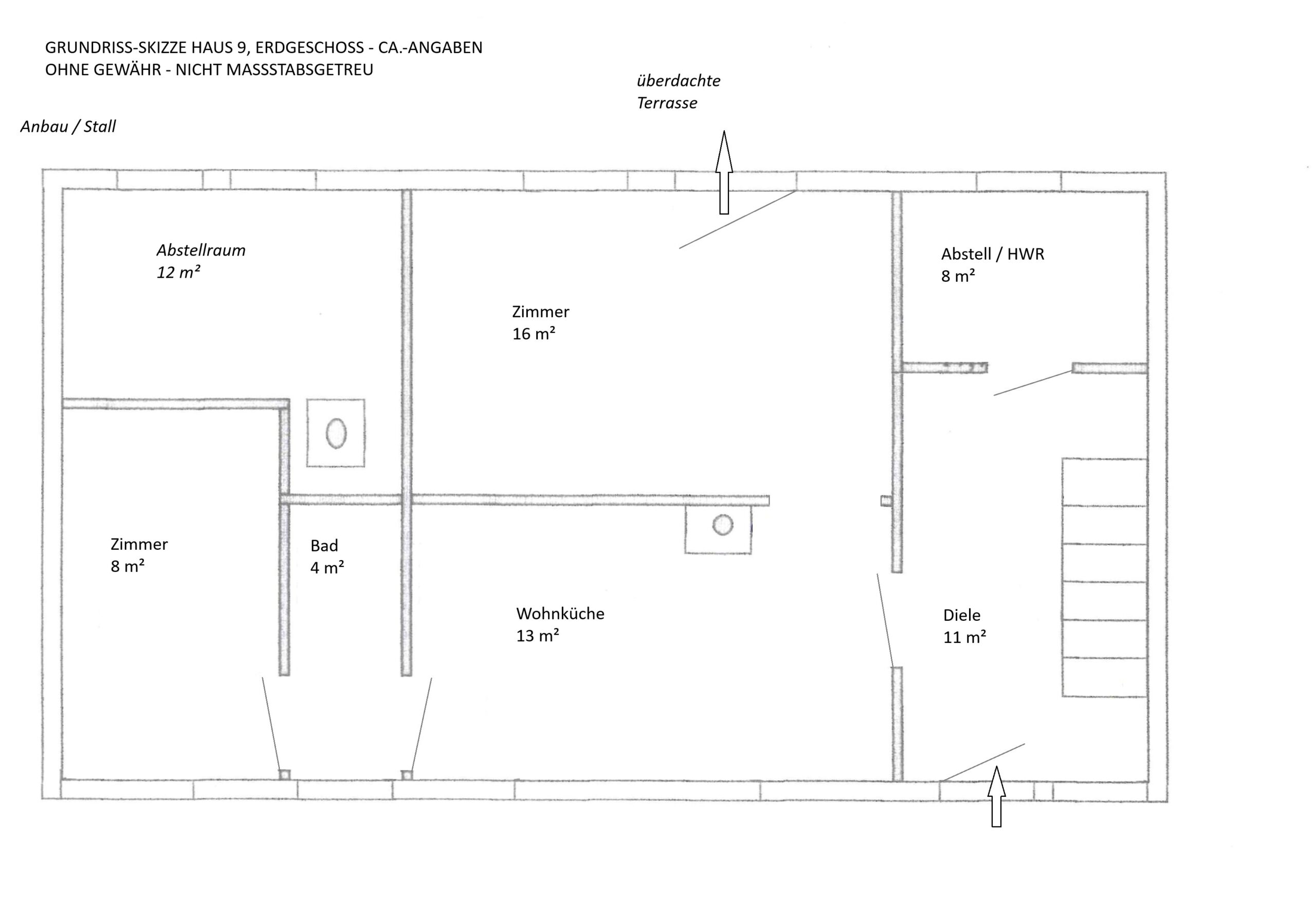
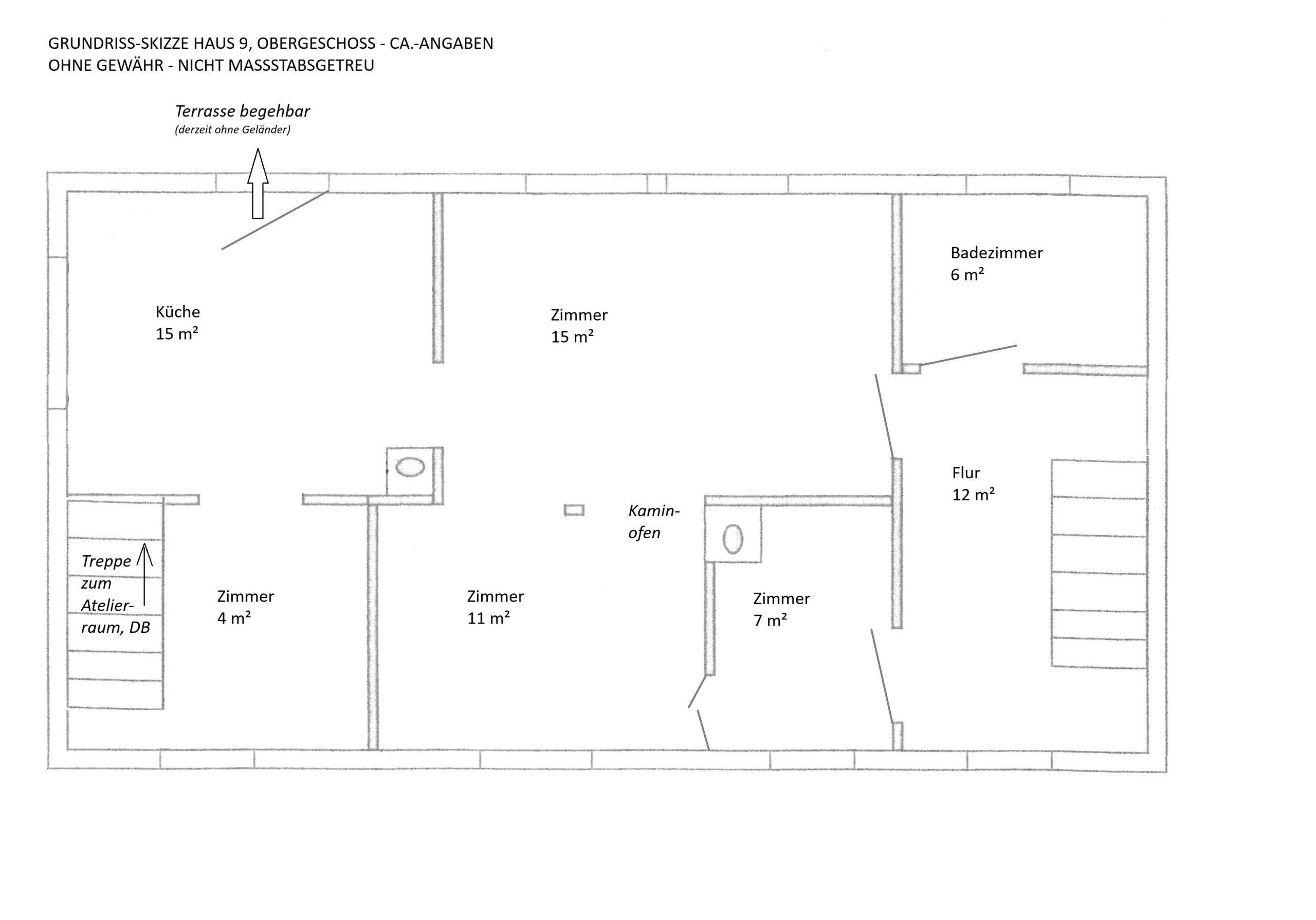
Reihenendhaus (Nr. 9) – 135 m² – 3 Zimmer – Atelierraum im Dachgeschoss – 2 kleinere Durchgangszimmer – 2 Wohnküchen – 2 Badezimmer – Eingangsdiele – Flur; zuzüglich überdachter Außenbereich
Reihenmittelhaus (Nr. 10) – 58 m² – 3 Zimmer – Küche – Badezimmer – Diele – Flur
Fachwerktypisch und baujahresbedingt variieren die Raumhöhen der einzelnen Zimmer zwischen ca. 2,06 m bis 2,36 m.
Nutzflächen im Nebengebäude, Garagenanlage, Nebenräume (ehem. Stall), Teilkeller
Objektbeschreibung:
Beide Häuser sind aufgrund von separaten Hauseingängen und Ver- und Entsorgungsleitungen unabhängig voneinander nutzbar. Lediglich die Heizungsanlage wird von beiden Häusern gemeinsam genutzt. Im Erdgeschoss besteht jeweils die Möglichkeit, aus dem Wohnraum nach Draußen in den rückseitigen Garten zu treten. Im größeren Haus bieten die zwei geräumigen Wohnküchen sowie das Atelierzimmer mit den zahlreichen Giebelfenstern im Dachgeschoss ein besonders heimeliges, gemütliches „Fachwerk-Ambiente“. Die Rampe vor dem Haus Nr. 9 ist problemlos demontierbar.
Heizung / Technik:
Gas-Zentralheizung (Baujahr 2022) mit Solarthermie und 600-Liter-Speicher für Warmwasser im Haus 9; im Haus 10 über elektrische Durchlauferhitzer
Wert gemäß Energiebedarfs-Ausweis vom 09.04.2025: 280,1 kWh / (m²*a); H
Strom und Wasser sind für beide Häuser einzeln abrechenbar, da separate Anschlüsse installiert sind. Sowohl Glasfaser-Anschlüsse als auch ein Starkstrom-Anschluss sind bereits gelegt.
Fuhrpark:
Für den Fuhrpark ist ebenfalls gut gesorgt: Insgesamt steht ca. 66 m² Garagenfläche (7,01 m x 6,02 m und 4,01 m x 6,01 m) mit drei Außen-Toren und einem Durchfahrtstor auf den Hof zur Verfügung. Zusätzlich können auch größere Fahrzeuge unter der überdachten Zufahrt seitlich des Nebengebäudes sowie direkt auf dem Hof abgestellt werden.
Bemerkungen:
Ein Haus, das sich ganz den Bedürfnissen der Bewohner anpasst! Dank der Fachwerkbauweise ist der Grundriss weitgehend flexibel veränderbar. Nach Absprache besteht die Option, nur eines der beiden Häuser zu erwerben. Gern informieren wir Sie über weitere Details und zeigen Ihnen das Objekt bei einem persönlichen Termin vor Ort.
Kaufpreis: 159.000 € VB
Nachweis-/Vermittlungsprovision: netto 3,00 % vom Kaufpreis zzgl. der gesetzlichen MwSt. 19 % = 3,57 % verdient und fällig mit Abschluss eines notariellen Kaufvertrags, zahlbar vom Käufer. Wir haben einen entgeltpflichtigen Maklervertrag über den gleichen Provisionssatz mit dem Verkäufer geschlossen.
Alle Angaben in unseren Angeboten sind ohne Gewähr, basieren ausschließlich auf Informationen Dritter und wurden nach bestem Wissen erteilt. Eine Haftung für die Richtigkeit, Vollständigkeit und Aktualität der Angaben kann daher von uns nicht übernommen werden. Alle Immobilienangebote sind freibleibend und vorbehaltlich Irrtümer, Zwischenverkauf oder –vermietung oder sonstiger Zwischenverwertung.
































