EF0878
Winkelbungalow in einmaliger, ruhiger Lage
Idyllisches Wohnen mit viel Privatsphäre
Lage:
Der hier angebotene Bungalow befindet sich ganz am Rande des Goslarer Stadtteils Kramerswinkel und grenzt mit seinem Gartengrundstück unmittelbar an die Ländereien – Wiesen und Wälder sowie landwirtschaftlich genutzte Flächen – die das bis heute bewirtschaftete Klostergut Grauhof (um 1700 gebaut) umgeben. Eine ausgesprochen idyllische Umgebung, die ausgiebige Spaziergänge direkt ab der Haustür ermöglicht. Ideal für Hundsbesitzer und sportlich aktive Menschen! Zugleich besteht eine gute Anbindung an die Stadt mit sämtlichen Einkaufsmöglichkeiten, gastronomischen und kulturellen Angebote, ärztlicher Versorgung und mehr.
Baujahr:
Das Haus wurde im Jahr 1970 in Massivbauweise mit Flachdach errichtet und im Jahr 1974 um einen Wohnzimmer-Anbau nochmals erweitert. Es wurde seitdem ausschließlich von den Eigentümern selbst bewohnt und gepflegt. Handlungsbedarf besteht neben den üblichen Renovierungsarbeiten allein aus energetischen Gründen und ganz nach Anspruch zeitnah in einer Erneuerung der baujahrestypischen Technik, der Fenster sowie der Heizungsanlage. Es lohnt sich! Die Bausubstanz ist augenscheinlich gut und bietet eine solide Basis für eine Modernisierung nach eigenen Vorstellungen.
Grundstück:
Das insgesamt 2.179 m² große, nahezu ebene Grundstück umgibt das Haus großzügig von allen Seiten und besteht aus einem Erbpacht-Anteil (1.404 m², Klosterkammer Hannover, 1.519,59 € im Jahr, Laufzeit bis 31.10.2069) und einem von der Stadt Goslar langjährig gepachteten, mit altem Baumbestand bewachsenen Gartengrundstück (775 m²), das sich zwischen dem Bungalow und dem Nachbargrundstück erstreckt. Die Kosten für die alleinige Nutzung dieser zusätzlichen „Ruhezone“ belaufen sich jährlich auf 158,50 € Pacht zuzüglich 325,55 € öffentliche Abgaben (Stand 2026). Eine private Komfortzone, die den traumhaften Garten nochmals erweitert und bereichert. Der Pachtvertrag mit der Stadt kann bei Bedarf mit einer 6-monatigen Frist gekündigt werden.
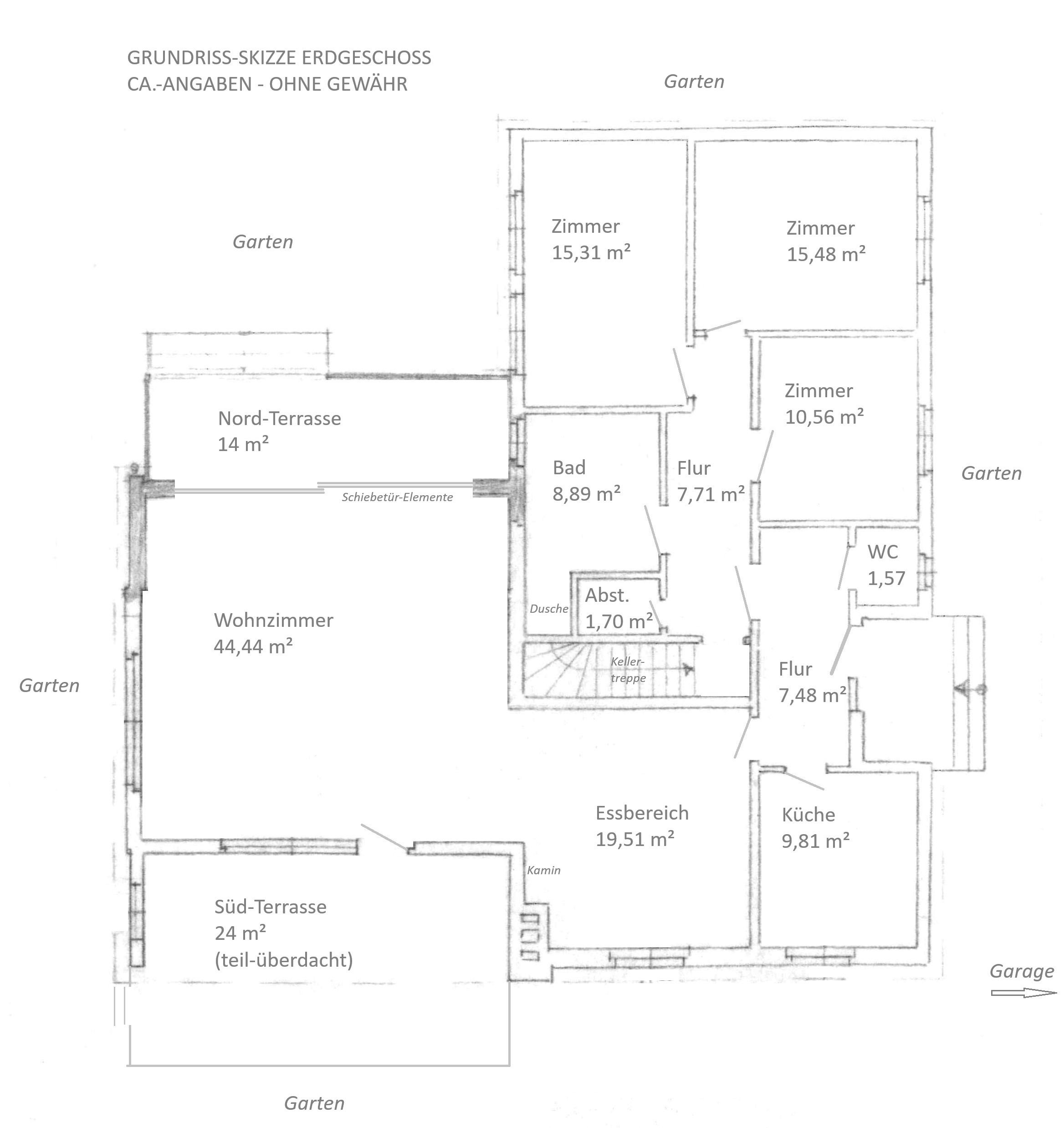
Wohn- / Nutzfläche (ca.-Angaben – ohne Gewähr):
Erdgeschoss – 138 m² Wohnfläche auf einer Ebene – Wohnzimmer (ca. 64 m²) – 3 weitere Zimmer – Küche – Tageslichtbad – Gäste-WC – Diele – Flur – Abstellraum
Zuzüglich 2 Terrassen: Richtung Süden ca. 24 m² (davon ca. 14 m² überdacht), Richtung Norden ca. 14 m²
Untergeschoss – 100 m² Nutzfläche – 3 Räume – Saunakeller – Heizungsraum – Öllagerraum – Vorkeller
Objektbeschreibung:
Der überdachte Eingangsbereich führt über einen Flur separat in Küche, das Gäste-WC, den privaten Wohntrakt mit drei Zimmern und großem Badezimmer sowie in den beeindruckenden, knapp 64 m² großen Wohnraum mit zwei Terrassen: eine teilüberdachte Südterrasse und eine im Winkel des Bungalows gelegene Terrasse in Nordausrichtung mit Blick in die Natur. Eine breite Fensterfront mit bodentief verglasten Schiebetür-Elementen bietet einen bezaubernden Blick in den Garten. Das untere, teilweise wohnlich gestaltete Geschoss, ist über eine feste Treppe zugänglich und bietet viel Nutz- und Hobbyfläche.
Heizung / Technik:
Öl-Zentralheizung
Wert gemäß Energiebedarfsausweis: 328,8 kWh / (m²*a); H
Fuhrpark:
Seitlich des Hauses steht eine bequem von der Straße befahrbare Garage zur Verfügung. Direkt davor kann ein weiteres Fahrzeug auf dem Grundstück abgestellt werden.
Bemerkungen:
Ein Haus, das noch vor dem Dornröschenschlaf wiederbelebt werden möchte! Nach getaner Arbeit wird die Belohnung ein einmaliges, modernes Zuhause in unwiederbringlicher Lage sein, das sich vorsorgend altersgerecht gestalten lässt und mit dem üppig bewachsenen Garten ein Paradies für große und kleine Bewohner bietet. Gern zeigen wir Ihnen dieses Angebot persönlich!
Kaufpreis: 219.000 € VB
Nachweis-/Vermittlungsprovision: netto 3,00 % vom Kaufpreis zzgl. der gesetzlichen MwSt. 19 % = 3,57 % verdient und fällig mit Abschluss eines notariellen Kaufvertrags, zahlbar vom Käufer. Wir haben einen entgeltpflichtigen Maklervertrag über den gleichen Provisionssatz mit dem Verkäufer geschlossen.
Alle Angaben in unseren Angeboten sind ohne Gewähr, basieren ausschließlich auf Informationen Dritter und wurden nach bestem Wissen erteilt. Eine Haftung für die Richtigkeit, Vollständigkeit und Aktualität der Angaben kann daher von uns nicht übernommen werden. Alle Immobilienangebote sind freibleibend und vorbehaltlich Irrtümer, Zwischenverkauf oder –vermietung oder sonstiger Zwischenverwertung.





























