EW0677
Traumhafte Erdgeschoss-Wohnung mit privatem Garten
355.000 € VB


4 Zimmer auf einer Ebene in bester Lage
Lage:
In bevorzugter, stadtnaher Wohnlage am Steinberg „thront“ das imposante, ansprechend modernisierte Fachwerk-Gebäude oberhalb der vorbeiführenden Anwohnerstraße und bietet bereits vom Erdgeschoss und aus den Gärten schöne Ausblicke über die Stadt. In fußläufiger Entfernung liegen die lebendige Altstadt mit zahlreichen Einkaufsmöglichkeiten, kulinarischen und kulturellen Angeboten, der Bahnhof, die Natur des Steinbergs – kurz: eine Umgebung zum Wohlfühlen.
Baujahr:
Das großzügige Wohnhaus wurde ca. im Jahr 1910 in klassischer Fachwerkbauweise errichtet, im Jahr 1997 grundlegend saniert, teilweise zurück- und umgebaut (z.B. Freilegung der Original-Stuckdecken) und in Eigentumswohnungen aufgeteilt. Nach einer umfangreichen Sanierung der stattlichen Fachwerk-Fassade im Jahr 2022 präsentiert sich das ansprechende Gebäude optisch und technisch von seiner besten Seite und bietet heute Raum für 8 sehr individuelle Wohneinheiten. Die kleine Eigentümergemeinschaft legt im eigenen Interesse viel Wert auf regelmäßige Instandhaltungsmaßnahmen, um auch langfristig ein angenehmes Wohngefühl zu gewährleisten. Die hier angebotene Wohnung im Erdgeschoss befindet sich in einem gepflegten Zustand und zeichnet sich aus durch einen vollkommen separaten Eingangsbereich und einem nahezu barrierefreien Zugang. Der private, ausschließlich dieser Wohnung zugeordnete Gartenbereich liegt direkt vor der eigenen Wohnungstür und bietet insbesondere in der warmen Jahreszeit viele Annehmlichkeiten.
Wohn- / Nutzfläche (ca.-Angaben):
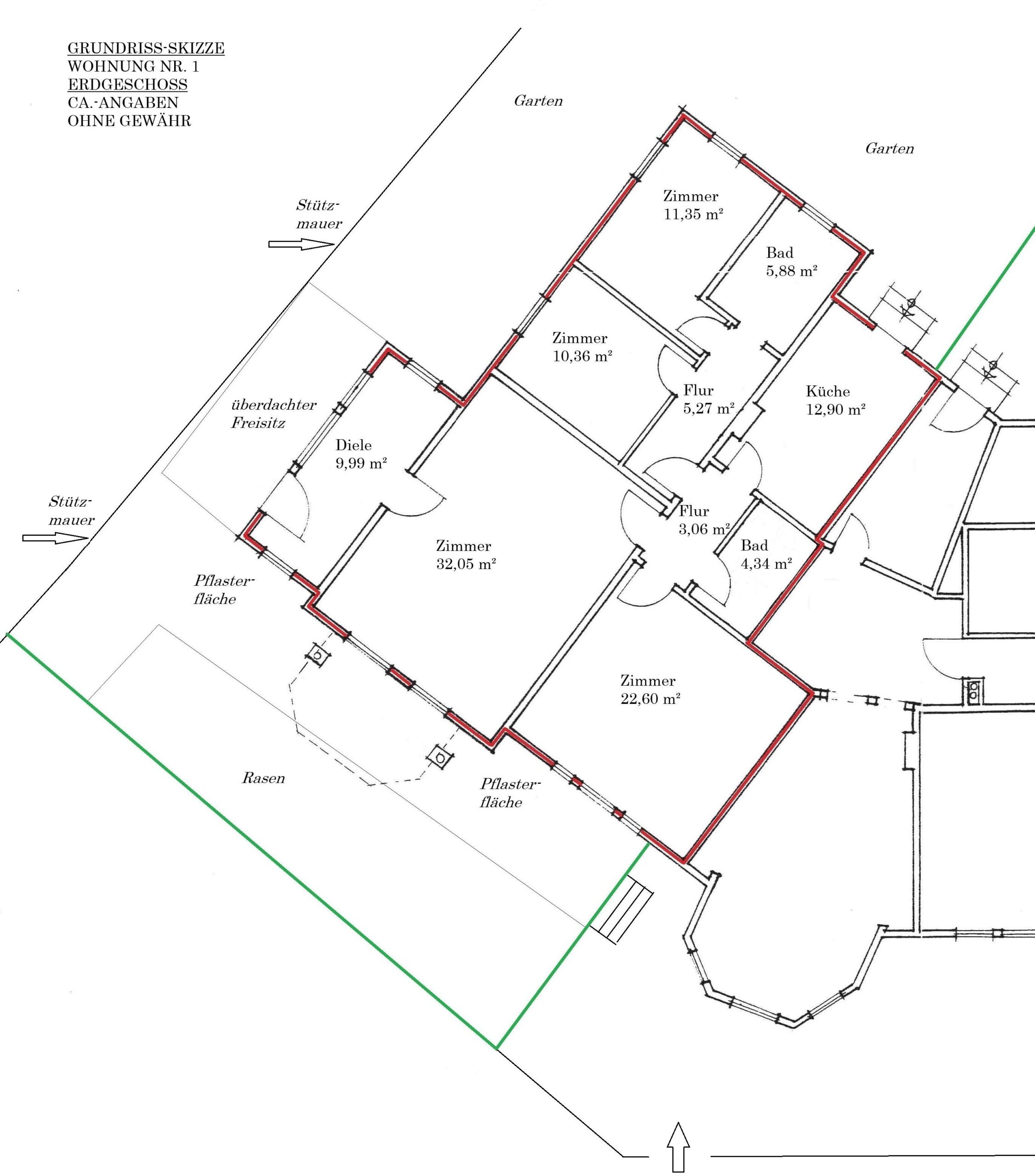
Ca. 118 m² Wohnfläche – 4 Zimmer – Küche – Tageslicht-Badezimmer – Gäste-Bad – Eingangsdiele – 2 Flure; zuzüglich überdachter Freisitz am Eingangsbereich ca. 12 m², privater Garten ca. 170 m², Kellerraum ca. 18 m²
Objektbeschreibung (Wohnung Nr. 1, Erdgeschoss):
Der Weg zu dieser Wohnung führt bequem über einen gepflasterten Weg mit vier Steinstufen vorbei am kleinen Vorgarten, der sich auf der Südseite des Hauses erstreckt. Ein sehr gemütlicher, überdachter Sitzbereich, der aufgrund einer rustikalen Steinmauer beinahe einen „Burgcharakter“ aufweist, schützt den privaten Wohnungseingang vor Witterungseinflüssen. Sowohl der Vorgarten (ca. 70 m²) als auch der größere Außenbereich (ca. 100 m²) hinter dem Gebäude ist dieser Wohnung zur alleinigen Nutzung zugeordnet.
Eine geräumige, auf drei Seiten mit Fenstern versehene Eingangsdiele ist dem angrenzenden, gut 30 m² großen Wohnraum vorgelagert. Von hier über einen Zwischenflur sind das ebenfalls sehr große Schlafzimmer mit Stuckelementen an der Decke, das innenliegende Gäste-Bad mit Dusche sowie die Küche separat begehbar. Die Küche ist mit einer Einbauküche ausgestattet und verfügt ganz wunderbar über einen direkten Ausgang in den eigenen, rückseitigen Garten. Ein zweiter Flur verbindet die beiden kleineren Wohnräume sowie das Tageslichtbadezimmer mit den anderen Räumlichkeiten.
Heizung:
Gas-Zentralheizung mit Warmwasser, Baujahr ca. 2007, Warmwasser-Speicher ca. 2019
Wert gemäß Energieverbrauchsausweis vom 26.08.2019: 114 kWh / (m²*a); D
Stellplatz:
Auf einem öffentlichen Parkplatz seitlich des Grundstücks findet sich in der Regel ein Parkplatz für die Bewohner des Hauses.
Monatliche Kosten / Hausgeld (ca.-Angaben):
525 € (Wirtschaftsplan 2025) inkl. Heizung, Wasser / Abwasser, Hausmeister, Müllabfuhr, Instandhaltungsrücklage, etc.; zzgl. Strom nach eigenem Verbrauch, Grundsteuer B ca. 25,50 € (Stand 2025)
Von den 525 € Hausgeld sind ca. 169 € (inkl. ca. 116 € Instandhaltungsrücklage) vom Eigentümer zu tragen und ca. 356 € sowie die Grundsteuer B auf einen eventuellen Mieter umlegbar.
Bemerkungen:
Eine Wohnung wie diese ist eine seltene Gelegenheit: vier Wohnräume, zwei Bäder, ein fast ebenerdiger, separater Eingang, mit einem privaten Garten gesegnet, in sehr begehrter stadt- und naturnaher Lage! Sehr gern zeigen wir Ihnen diese besondere Immobilie persönlich bei einem unverbindlichen Termin nach Absprache.
Kaufpreis: 355.000 € VB
Nachweis-/Vermittlungsprovision: netto 3,00 % vom Kaufpreis zzgl. der gesetzlichen MwSt. 19 % = 3,57 % verdient und fällig mit Abschluss eines notariellen Kaufvertrags, zahlbar vom Käufer. Wir haben einen entgeltpflichtigen Maklervertrag über den gleichen Provisionssatz mit dem Verkäufer geschlossen.
Alle Angaben in unseren Angeboten sind ohne Gewähr, basieren ausschließlich auf Informationen Dritter und wurden nach bestem Wissen erteilt. Eine Haftung für die Richtigkeit, Vollständigkeit und Aktualität der Angaben kann daher von uns nicht übernommen werden. Alle Immobilienangebote sind freibleibend und vorbehaltlich Irrtümer, Zwischenverkauf oder –vermietung oder sonstiger Zwischenverwertung.

















